Phone: (440) 710-0711
☰
Our Neighborhoods
Our Homes
Immediately Available Homes
Homes for Rent
View All Homes
Floorplans
Save with Energy Star
Warranty & Service
Our Selection Center
About Us
Join Our Team
Our Difference
Financing
Testimonials
Awards & Memberships
Gallery
Contact Us
General Inquiries
Request a Quote
Sell Your Property
We Buy Land
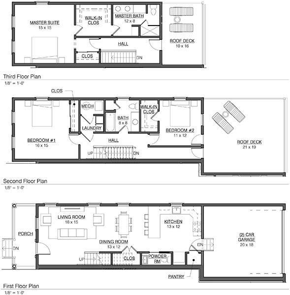
Ravella Unit C
Bedrooms:
3
Bathrooms:
2.5
Floors:
3
Garage:
2 Car Attached
Square Feet:
1980
Neighborhoods this Floor Plan is available in:
Ravella
B.R. Knez Construction, Inc.
|
7555 Fredle Drive, Suite 210
|
Concord Township, Ohio 44077
|
Phone: (440) 710-0711
Our Neighborhoods
|
Our Homes
|
About Us
|
Gallery
|
Contact Us
|
We Buy Land
All Rights Reserved 2025, Knez Homes -
Admin Login
|
Alt Media Studios