220 Shoreland Circle
Willowick, OH
Lake County
Neighborhood: Shoreland Crossings
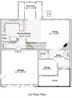
Floor Plan: 2 Story Master Up - Crestview
- 4 Bedrooms
- 2.5 Baths!
- Great Room with Corner Gas Fireplace
- 9' Ceilings
- Kitchen with Breakfast Bar and Quartz Counters
- Walk In Pantry
- 36" High Upper Cabinets
- Morning Room/Sunroom off the Kitchen
- 1st Floor Den
- 2nd Floor Laundry!
- Huge Master Suite with Walk In Closet, 2 Sinks, Soaking Tub and Custom Tiled Shower!
- Knez Noted Quality with Poured Wall Foundation and 2x6 Exterior Walls!
Many upgraded options!
For more information on purchasing this home, please call Elaine Keating at 216-218-4022 or email at info@knez.net.
|
Price: $339,900
Bedrooms: 4
Bathrooms: 2.5
Floors: 2
Year Built: 2019
Square Feet: 2402
Property Status: For Sale (Immediately Available)
|



